Did you know that Whistler is exempt from the Foreign buyers ban ?

  • Townhouse for sale at 15-8030 Nicklaus North Boulevard, Whistler BC.  Listed for $2,699,000 CDN.
  • Townhouse for sale at 15-8030 Nicklaus North Boulevard, Whistler BC.  Listed for $2,699,000 CDN.
  • Townhouse for sale at 15-8030 Nicklaus North Boulevard, Whistler BC.  Listed for $2,699,000 CDN.
  • Townhouse for sale at 15-8030 Nicklaus North Boulevard, Whistler BC.  Listed for $2,699,000 CDN.

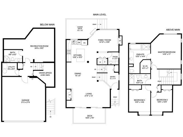
15-8030 Nicklaus North Boulevard

$2,699,000

Calling all golfers! Imagine taking a leisurely morning stroll over to the Nicklaus North Club House from this end-unit townhome just steps from the first tee. The property requires a full facelift and has been priced accordingly, but the floor plan lends itself perfectly to your vision. 3 bedrooms plus a large flex space, 2-car garage, multiple sunny patios, and zoning allows for unlimited owner use including nightly rentals. The property also features a gas fired furnace and 2 fireplaces -- one gas and one wood. At nearly 2300 sqft, this home offers plenty of space for family and friends, along with Nicklaus North Golf Club, Green Lake, Lost Lake Park, and the Valley Trail all right at your doorstep.

 

Details

Type:
Townhouse
Year Built:
1997
Size:
2293 Sq.Ft.
Complex:
Englewood Greens
Beds:
3.5
Baths:
2.5
Taxes:
$9766.48
Strata Fees:
$762.00
Roofing:
Duroid

Amenities

Central Vacuum:
1
Dishwasher:
1
Washer/Dryer:
1/1
Parking:
2 Car Garage
Flooring:
Mixed
Heating:
Electric/Forced Air
 

Zoning

Rental Covenant:
Phase I
Zoning:
RTA4 - Res. Tourist Acc

Location

 

Listing REALTOR®

Angell Hasman & Associates
20-4314 Main Street Whistler V8E1A8
Office: 604-921-1188